La Paz

Alejandro Vazquez - Casa Levitae


ALEJANDRO VAZQUEZ ARQUITECTO & ASOCIADOS

Casa Levitae, La Paz, Bolivia.-

Alejandro Vasquez - diseñobolivia.com

Casa Levitae - Fotografía cortesía: Juan Pablo Calero

Del Autor: El proyecto Casa LEVITAE surge de la representación de la ‘ “Levitación” o “Flotación” a través de volúmenes masivos. El diseño muestra cómo un gran volumen que emerge del suelo se diluye hacia abajo, perdiendo densidad y quedando sólo en columnas desnudas que se apoyan en el suelo y que aprovecha también la topografía natural.

Alejandro Vasquez - diseñobolivia.com

Casa Levitae - Fotografía cortesía: Juan Pablo Calero

Alejandro Vasquez - diseñobolivia.com

Casa Levitae - Fotografía cortesía: Juan Pablo Calero

El proyecto cuenta con 3 niveles: el superior, visualmente con una densidad mayor, muy sólido y volumétrico; el nivel intermedio con muchos más ventanales y visualmente menos denso y volumétrico; y la planta inferior, muy transparente y vidriada y por esa razón muy poco denso.

Alejandro Vasquez - diseñobolivia.com

Casa Levitae - Fotografía cortesía: Juan Pablo Calero

La Casa Levitae está ubicada en la ladera sur de la ciudad de La Paz en Bolivia y está orientada al norte para aprovechar de la mejor manera el sol de la mañana y la tarde, debido a que la mayor parte del año, la temperatura media es de 12 ºC, por lo que la orientación al sol es muy importante para el calentamiento de espacios.

Alejandro Vasquez - diseñobolivia.com

Casa Levitae - Fotografía cortesía: Juan Pablo Calero

Desde el terreno donde esta ubicada la casa se puede ver toda la ciudad de La Paz y la naturaleza circundante, y este aspecto ha sido predominante para el diseño arquitectónico. El proyecto podría corresponder a una línea nueva del Deconstructivismo por su morfología, sistema estructural y constructivo, complejos.

Alejandro Vasquez - diseñobolivia.com

Casa Levitae - Fotografía cortesía: Juan Pablo Calero

Alejandro Vasquez - diseñobolivia.com

Casa Levitae - Fotografía cortesía: Juan Pablo Calero

Alejandro Vasquez - diseñobolivia.com

Casa Levitae - Fotografía cortesía: Juan Pablo Calero

Casa Levitae - Fotografía cortesía: Arq. Alejandro Vazquez

El programa responde a las necesidades de los usuarios que son una pareja sin hijos y con mascotas felinas, así como a requerimientos específicos como estudio musical, jardín, parrillero, aparcamiento para dos vehículos, áreas verdes interiores y amplias posibilidades de espacialidad con dobles alturas y vacios; todo dentro de una pequeña parcela de 340 m2.

Alejandro Vasquez - diseñobolivia.com

Casa Levitae - Fotografía cortesía: Arq. Alejandro Vazquez

El sistema estructural ha sido un desafío importante, porque la mayoría de los ingenieros paceños nunca se han enfrentado al cálculo con columnas inclinadas y grandes voladizos; así como su construcción con mano de obra estándar. Otro desafío fue el acabado fino debido a las mismas razones antes mencionadas.

Alejandro Vasquez - diseñobolivia.com

Casa Levitae - Fotografía cortesía: Juan Pablo Calero

Alejandro Vasquez - diseñobolivia.com

Casa Levitae - Fotografía cortesía: Arq. Alejandro Vazquez

La presencia del proyectista, en el proceso constructivo de la obra, ha sido muy exigente debido a la complejidad de ejecución de cada ítem constructivo.


PLANOS

Alejandro Vasquez - diseñobolivia.com

Ubicación -

Alejandro Vasquez - diseñobolivia.com

Planta - Nivel 1 / Floor Plan - Level 1

Alejandro Vasquez - diseñobolivia.com

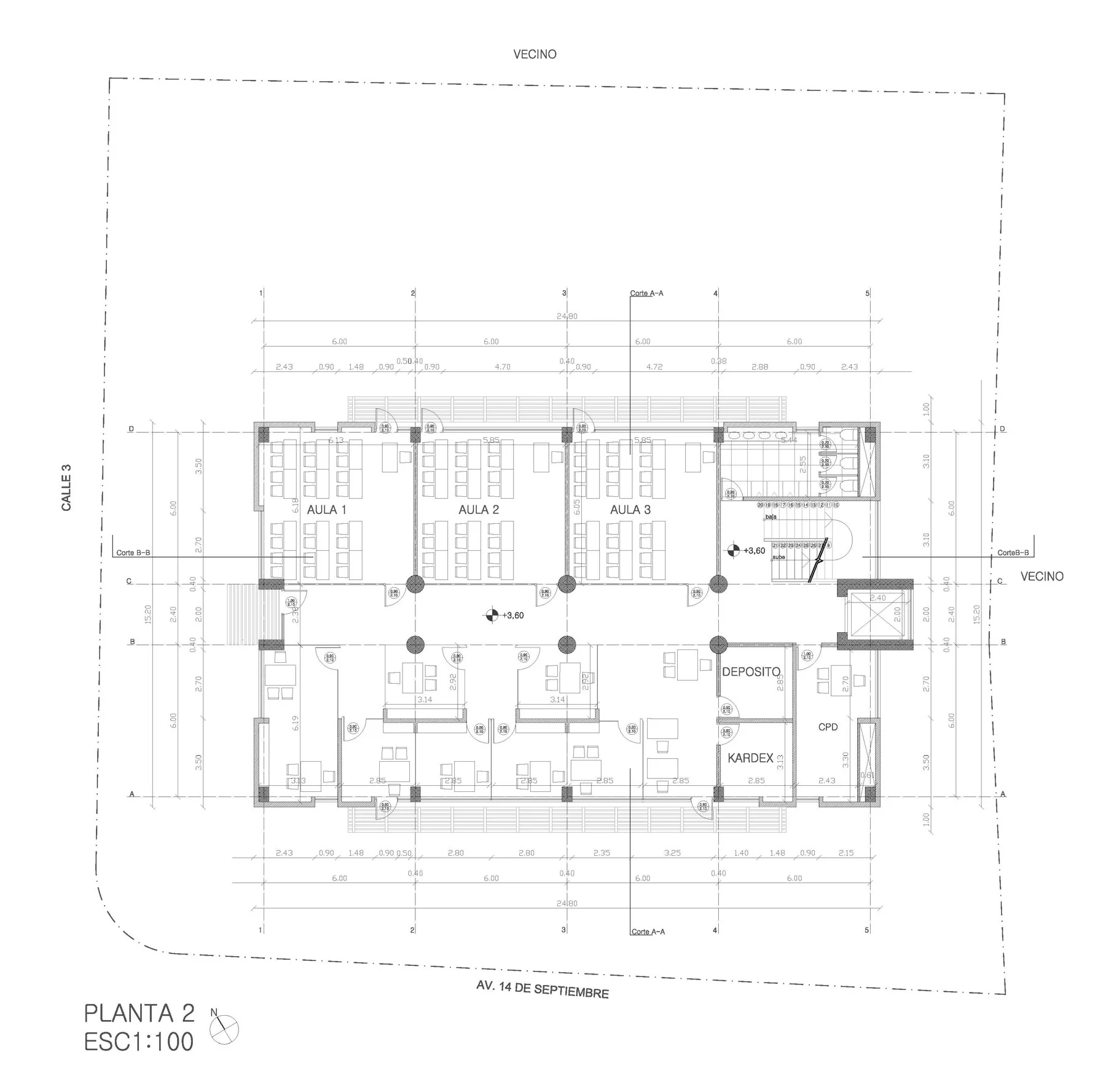
Planta - Nivel 2 / Floor Plan - Level 2

Alejandro Vasquez - diseñobolivia.com

Planta - Nivel 3 / Floor - Plan Level 3

LINEA TEÓRICA DEL PROYECTO

El proyecto pertenece a una línea Neo Deconstructivista. A partir del artículo de Farid Karim, 2023, llamado: “¿Constructivista, deconstructivista y neo deconstructivista? El legado de Zaha de cambio arquitectónico”.

alejandro vasquez - diseñobolivia.com

Elevación Oeste / West Elevation

El autor hace un análisis de elementos evolutivos desde el Constructivismo soviético hasta el deconstructivismo de Jacques Derridá y una propuesta conceptual sobre el nuevo deconstructivismo a partir de las obras de Zaha Hadid. Por supuesto que el Neo deconstructivismo, así como su existencia, aún están siendo estudiadas y teorizadas. Personalmente he querido aportar en el fundamento teórico a partir del Proyecto Casa Levitae. Hice también, un análisis sobre la estructura teórica deconstructivista y descubro que "se ha olvidado del Ser Humano" y se ha entregado enteramente a complejidades geométricas y tecnológicas. Como un ensayo arquitectónico despiadado. Esa es la gran razón del fallo de esta línea.

alejandro vasquez - diseñobolivia.com

Elevación Norte / North Elevation

Sin embargo, algunos arquitectos ya han iniciado un recorrido en la "reconstrucción" del deconstructivismo, aunque suene contradictorio. Ya han incluido nuevamente al ser humano como parte imprescindible de las decisiones asumidas, tanto en el proceso de diseño, como en el producto terminado.

alejandro vasquez - diseñobolivia.com

Elevación Este / East Elevation

La Casa Levitae es una propuesta, en que yo la introduzco en la nueva teoría reconstructiva sobre el deconstructivismo, denominada Neo deconstructivismo. En donde se reivindica drásticamente el principio y el fin, pero manteniendo, de forma equilibrada, aquella búsqueda de complejidad morfológica y tecnológica

Alejandro Vasquez - diseñobolivia.com

Casa Levitae - Foto Cortesía: Juan Pablo Calero

Alejandro Vasquez - diseñobolivia.com

Casa Levitae - Foto Cortesía: Juan Pablo Calero


ENGLISH SUMMARY -

LEVITAE House project arises from the representation of “Levitation” or “Flotation” through massive volumes. The design shows how a large volume that emerges from the ground dilutes downwards, losing density and leaving only bare columns that rest on the ground and that also take advantage of the natural topography. The project has 3 levels: the upper one, visually of greater density, very solid and volumetric; the intermediate level with many more windows and visually less dense and volumetric; and the lower floor, very transparent and glazed and therefore very sparse.

Levitae House is located on the southern slope of the city of La Paz in Bolivia and faces north to make the most of the morning and afternoon sun, since most of the year the average temperature is 12 ºC, so That orientation to the sun is very important for space heating.

From the land where the house is located you can see the entire city of La Paz and the surrounding nature, an aspect that has been predominant for the architectural design.

The project could correspond to a new line of Deconstructivism due to its complex morphology, structure and construction system.

The program responds to the needs of users who are a couple without children and with feline pets, as well as specific requirements such as a music studio, garden, barbecue, parking for two vehicles, interior green areas and ample spatial possibilities with double heights and emptiness; all within a small plot of 340 m2.

The structural system has been an important challenge, because most La Paz engineers have never faced the calculation with inclined columns and large cantilevers; as well as its construction with standard labor. Another challenge was finishing well for the same reasons mentioned above.

The presence of the designer, in the construction process of the work, has been very demanding due to the complexity of execution of each construction element.


Ficha Técnica:

Estudio: ALEJANDRO VAZQUEZ ARQUITECTO & ASOCIADOS

Diseñador: Arq. J. Alejandro Vazquez R.

Fotógrafos: J. Alejandro Vazquez R. // Juan Pablo Calero

Año de diseño del proyecto: 2022

Año de construcción: 2023-2024

Superficie del predio: 330 m2 Precio del predio: USD 60`000.

Superficie construida: 345 m2 Costo Construcción: USD 142`000 P.U.: USD/m2 412

Ubicación GPS: LA PAZ – BOLIVIA 16º03`58” S 68º03`42” W

Concepto del proyecto: Desafío visual a la gravedad. Levitación. Flotación.

Premisas de diseño: Adaptación a la forma del suelo, Sol e iluminación natural, vegetación interna,

vacios y dobles alturas



diseñobolivia.com

2025

Juan Carlos Calderon - HANSA-AG

Presentamos un interesante análisis gráfico del diseño para el Edificio HANSA en La Paz, del Arq. Juan Carlos Calderón.

juan carlos calderon - diseñobolivia.com

Ilustración cortesía: Héctor Laura ART

Proyecto: EDIFICIO HANSA
Cliente: HANSA LTDA.
Localización: Av. Mariscal Santa Cruz esq. Yanacocha, La Paz - Bolivia
Arquitecto: Juan Carlos Calderón
Superficie construida: 18.480 m2
Costo estimado de la obra: 4,000,000.00.- U$d.
Ingenierías: SICO Asesoramiento, Estudios Preliminares, Diseño de Arquitectura, Estructuras, Instalación Sanitaria, Eléctrica y Termomecánica (HVAC), Supervisión de Estructuras y Obra Gruesa
Año: 1975, 1976 - 1979

juan carlos calderon - diseñobolivia.com

Ilustración cortesía: Héctor Laura ART


Análisis gráfico VIDEO:

Análisis gráfico, Edificio HANSA - Cortesía: Arq. J.Paul Dávila F. y equipo. La Paz, Bolivia.


www.diseñobolivia.com

2022

Juan Carlos Calderón - CAF

Edificio de la Corporación Andina de Fomento en La Paz, Bolivia.

Arquitecto Juan Carlos Calderón

Juan Carlos Calderón - diseñobolivia.com

Original Sketch, exterior / Boceto exterior - Arq. Juan Carlos Calderón

El Edificio de la Corporación Andina de Fomento situado en la ciudad de La Paz, Bolivia, está diseñado para ser ocupado por las oficinas corporativas de su representación en esa ciudad. Consta de áreas de trabajo propiamente dichas, oficinas ejecutivas y otros espacios ocupados por salas multifuncionales, biblioteca, comedor de personal, galería de arte y  un auditorio para ciento treinta personas. Cuenta además con un área de estacionamiento en dos niveles con capacidad para 38 vehículos. Está dividido en dos volúmenes laterales sobre un gran hall, el principal ocupado por todas las áreas de trabajo y esparcimiento y el otro por espacios de circulación vertical, baterías de baños y otros servicios. Ambos volúmenes se comunican por medio de puentes vidriados que cruzan el gran espacio central el que se halla cubierto por una estructura de metal y vidrio. Las áreas públicas, semi-públicas y privadas están repartidas en los correspondientes tres niveles del edificio.

juan carlos calderón - diseñobolivia.com

Building´s front & main entrances / frente e ingresos principales - Arq. Juan Carlos Calderón

La estructura está construida en hormigón armado con elementos importantes de vidrio y granito.

El proyecto arquitectónico ha sido el resultado de un concurso de ideas.

juan carlos calderón - diseñobolivia.com

Plan sketch / boceto de planimetría - Arq. Juan Carlos Calderón

El edificio no es una estructura corporativa más, sino que expresa el carácter andino de los cinco países que conforman la Corporación. Los elementos de su arquitectura simbolizan las características excepcionales de los mismos.

La ciudad de La Paz está situada en un valle rodeado de agrestes montañas coronadas por uno de los macizos más importantes de América, el Illimani. Su presencia forma parte ineludible del que hacer cotidiano de la urbe. Es, por consiguiente, una feliz coincidencia que el terreno elegido para el edificio de la CAF esté situado al borde de un profundo cañón y que en su lado posterior se pueda gozar de una magnifica vista que jamás será cubierta por futuras construcciones.

El que los cerros más importantes se encuentren hacia el Este, sugiere la creación de un eje longitudinal siguiendo esta última dirección.

Tal giro contribuye además a que la fachada principal del edificio haga un ligero ángulo con la vía orientándose así hacia el área de la avenida donde se encuentran algunas de las principales edificaciones.

SIMBOLISMO ANDINO. Un extenso atrio de acceso, constituye un leve plano inclinado que simboliza el ascenso a los macizos andinos y concuerda con la topografía de la ciudad.

Cinco elementos monolíticos al final del atrio aluden a los cinco países fundadores de la Corporación Andina de Fomento y constituyen grandes portales de entrada al edificio.

El proyecto arquitectónico muestra un juego de volúmenes interrumpido por la transparencia de un gran plano vidriado que, repitiéndose al fondo de una plazuela central, logra así identificar al complejo con la presencia de los cerros circundantes.

juan carlos calderón - diseñobolivia.com
juan carlos calderón - diseñobolivia.com
juan carlos calderón - diseñobolivia.com

El volumen del auditorio avanza separadamente hacia la avenida constituyendo otro importante elemento de aspecto telúrico-andino del complejo. Consta de un acceso directo desde la avenida y otro desde la plazuela, lográndose así que el espacio pueda ser utilizado independientemente o en conjunto con el área pública del edificio.

juan carlos calderón - diseñobolivia.com

El área de estacionamiento para 38 automóviles esta dividida en dos niveles permitiendo de esta manera el no tener que recorrer toda la extensión del área y facilitando la llegada al hall de ascensores. Dos rampas, una de entrada y otra de salida, contribuyen el flujo vehicular.

juan carlos calderón - diseñobolivia.com

Para enfatizar el carácter andino del proyecto se ha visto por conveniente utilizar materiales nobles y naturales sin revestimiento, tales como el granito, el hormigón visto y la cerámica, combinados con muros revocados y colores apropiados.

La superficie construida es de 4.758 m2 repartida en tres niveles, incluyendo la plazuela central y el área de estacionamiento.

juan carlos calderón - diseñobolivia.com

www.diseñobolivia.com

2022

Bedoya + Calero - Colinas

Vivienda unifamiliar en Colinas de Aranjuez, La Paz, Bolivia.

Arqta. Magaly Calero C. + Arq. Javier bedoya S.

javier bedoya + magali calero, diseñobolivia.com

de los Autores:

El proyecto ha sido concebido como un contenedor de vida para dos personas mayores, jubiladas, que trabajan desde su casa, y una persona joven que estudia en la universidad.

javier bedoya + magali calero, diseñobolivia.com

Boceto, Cortesía Arqs. Bedoya + Calero

 Tres han sido las premisas de diseño:

1.      Debido a la calidad del suelo, se propuso una viga cajón corrida, que soporta una plataforma o losa, elevada del nivel del suelo, sobre la que se desarrolla toda la vivienda. La forma de esta fundación busca evitar cualquier posible deformación que pudiera tener la estructura como consecuencia de algún movimiento o hundimiento del suelo.

Ground Floor plan / Planta baja - Cortesía: Arqs. Bedoya + Calero

Upper Floor plan / Planta alta - Cortesía: Arqs. Bedoya + Calero

2.      Otra premisa fue considerar a la vivienda como un contenedor de vida, lo que terminó definiendo su materialidad y forma: un paralelepípedo rectangular modulado y construido con materiales tradicionales como HoAo, ladrillo, carpintería exterior de aluminio y vidrio, carpintería interior de madera, revoques de yeso y cal-cemento, y revestimientos de porcelanato.

Site plan and roof / sitio y cubierta - Cortesía: Arqs. Bedoya + Calero

3.      La tercera premisa fue la de ordenar el contenedor por franjas, en función al uso y ubicación de los espacios. La primera franja ubicada al sudeste, está delimitada por el muro medianero hacia el vecino y el muro posterior de la vivienda. En ella se ubica el parqueo y el área de depósitos. Algo importante en el diseño fue proteger la vivienda del frio de los vientos del sudeste, por lo que el muro posterior es doble y cerrado en un noventa porciento, con excepción de una ventana ubicada en el segundo piso, que sigue la línea del pasillo y recupera el paisaje existente.

Elevation / Elevación - Cortesía: Arqs. Bedoya + Calero

Una segunda franja es la delimitada por ese muro y las columnas y/o paredes internas de las áreas de uso. En esta franja se ubican: la circulación (gradas y pasillo), que se inicia en la puerta de ingreso al lote, los baños (de visitas, general y del dormitorio principal), y la lavandería.

Elevation / Elevación - Cortesía: Arqs. Bedoya + Calero

Section / Sección Longitudinal - Cortesía: Arqs. Bedoya + Calero

Una tercera franja es la que corresponde a las áreas de uso: escritorio, sala, comedor y cocina en planta baja y tres dormitorios y sala familiar en la planta alta. Todos estos espacios orientados al noroeste, por lo que reciben la luz del sol durante todo el día.

Una cuarta franja es la intermedia entre estos espacios de uso y el exterior. Esta franja está definida por una terraza en la planta baja y una estructura metálica de cubierta que controla la incidencia del sol en los ambientes de la planta alta. Y por último, ubicado hacia el noroeste se encuentra un jardín.  



Creditos:

Año de construcción: 2019

Superficie del terreno: 354.00m2.

Superficie construída: 244.50m2.

Diseño arquitectónico: Arqta.Magaly Calero C. + Arq.Javier Bedoya S.

Diseño de interiores Arq. Ramiro Calero C.

Estudio de suelos: Labomat

Diseño estructural: Ing. Rubén Fernández B.

Diseño sanitario: Fernández e ingenieros

Diseño eléctrico: Fernández e ingenieros

Construcción obra gruesa: Pro Build

Construcción obra fina: Gumercindo Quispe

Renders y Modelo Inmersivo: 3D Pro Build


www.diseñobolivia.com

2022


Manuel Aliaga - Reconversión Paisajistica

Victor Manuel Aliaga Martinez

PROPUESTA DE RECONVERSIÓN PAISAJÍSTICA,

Emulando procesos naturales para el área del relleno sanitario de MALLASA

La Paz - Bolivia.

Propuesta imaden Urbana - Cortesía: Arq. Manuel Aliaga

Texto del Autor:

La propuesta para la nueva imagen de la ciudad de La Paz, establece como elemento estructural una hidro-logía descentralizada. Las flechas representan la dirección de esta nueva hidrología, que está fragmentada en me-nores circuitos y aprovecha la variación en la topografía para generar flujos alternativos siguiendo la curva de nivel. Esta nueva red de agua intenta disminuir la presencia excesiva de agua en un solo lugar para distribuirse y conectar-se por toda la ciudad. Acompañando estos nuevos flujos se generan brazos de una nueva estructura de bosquecillos que conecta los parches de la disminuida vegetación existente. Finalmente se define el área de Mallasa para plan-tear principios de diseño del paisaje.

Vista aerea capas - Cortesía: Arq. Manuel Aliaga

La reconversión del relleno sanitario de Mallasa, es un ejercicio de diseño para aplicar principios de urbanismo del paisaje, en un contexto concreto. Para este ejercicio, el sitio del ex-relleno sanitario, concentra una serie de elemen-tos de orden espacial-medioambiental que posibilitan pensar en una reconversión transcendental a nivel urbano y territorial.

Hidrología existente - Cortesía: Arq. Manuel Aliaga

Hidrología existente - Cortesía: Arq. Manuel Aliaga

Hidrología Propuesta - Cortesía: Arq. Manuel Aliaga

Hidrología Propuesta - Cortesía: Arq. Manuel Aliaga

El lugar además de funcionar como antiguo depósito de basura de la ciudad de La Paz, se inscribe en un sistema de áreas públicas y naturales, que funciona como espacio recreativo y distensión para los habitantes de la ciudad. El Bio-parque y centro de rescate de animales Vesty Pacos, anteriormente zoológico municipal, junto con el parque del Sol y el parque municipal Mallasa, conforman uno de los pocos espacios abiertos de acceso público de notable valor que bien podría ampliarse con la incorporación y reconversión del área del relleno sanitario. Adicionalmente este lugar se ha convertido en el eje de nuevas áreas de crecimiento urbano y ha sido definido como estratégico dentro el modelo urbano de “nueva centralidad” del gobierno municipal.

Mallasa landfill - Cortesía: Arq. Manuel Aliaga

Por otro lado, es un lugar en donde los causes de los ríos permanecen abiertos y sus aires no han sido recortados por la urbanización, por lo que la propuesta aprovecha esta oportunidad para plantear escenarios de transformación y reconversión del paisaje en torno al agua. El Río La Paz y el Río Achocalla se encuentran próximos por lo que resulta conveniente para generar y regenerar una nueva dinámica del sistema hidrológico. Por último, para el área concre-ta del relleno sanitario, se ve necesaria una reconversión que ajuste y revierta los efectos negativos medioambienta-les de su anterior función, para integrarse a un nuevo funcionamiento dentro del sistema de espacios abiertos y es-tructura natural del entorno.

Vista aerea imagen - Cortesía: Arq. Manuel Aliaga

Planimetría imagen - Cortesía: Arq. Manuel Aliaga

Para este propósito se plantean ocho escenarios; estanques de fitorremediación, un bosque de raíces profundas, acequias, restauración de cursos de causes, frente de absorción para espacios dedicados a la agricultura, nueva tipología para la urbanización, estanques y canales de riego para campos de agricultura y una planicie de retención de agua. Estos escenarios actúan, simultáneamente bajo siete principios de diseño desde el manejo sustentable del agua; descontaminación, prevención de deslizamientos, recuperación de espacios naturales, áreas de inundación, el río como principal frente de desarrollo y micro reservas para la irrigación.

Escenarios - Cortesía: Arq. Manuel Aliaga

Cortesía: Arq. Manuel Aliaga


Sobre el autor:

Victor Manuel Aliaga Martinez

Manuel Aliaga es arquitecto urbanista y diseñador con estudios de licenciatura por la Universidad Católica de La Paz, Bolivia (UCB).

Maestría en Asentamientos Humanos por la Universidad Católica de Lovaina, Bélgica.

Maestría en Urbanismo y Planificación Estratégica por la Universidad Católica de Lovaina, Bélgica

(KU Leuven).

Es premiado en el concurso de ensayos “Ciudades y cambio climático” organizado por Red Habitat y Misereor (ONGs) en 2012 con el artículo Choqueyapu el río que la ciudad enterró.

Trabaja en colaboración con estudios de Arquitectura y urbanismo en Bolivia y Bélgica. Su área de especialidad es la planificación urbana con enfoque en desarrollo sostenible y paisaje, desde la problemática del agua.

Actualmente se encuentra produciendo la publicación “Conectando flujos de agua” que es una continuación de su línea de trabajo sobre la ciudad de La Paz y su manejo de agua a nivel territorial.

Contacto:

Brusselsestraat 66, 3000 Lovaina, Bélgica

+32 46 66 28 23 54

manuel.aliaga@yahoo.com

http://manuelaliaga.wixsite.com/site

Cortesía: Arq. Manuel Aliaga

Cortesía: Arq. Manuel Aliaga



www.diseñobolivia.com

© 2020

Arturo Espinoza - Chiaraque

Arquitecto Arturo Espinoza

Centro de Interpretación de la Muela del Diablo,

Chiaraque, La Paz, Bolivia.

South East view / vista desde el Sur-este, Cortesía: Arq. Arturo Espinoza

South East view / vista desde el Sur-este, Cortesía: Arq. Arturo Espinoza

Descripción del autor:

La Paz es una de las ciudades con mayor flujo turístico interno y receptivo de Bolivia,

lo cual ha generado un crecimiento en la oferta turística del área urbana paceña y sus

alrededores, diversificando de esta manera la cantidad de atractivos y actividades a ser

realizadas en cada destino. Dada la diversificación de actividades turísticas (parapente,

trekking , escalada en roca, downhill , birdwatching , etc.), el turismo convencional o de masas

ha empezado a ceder espacio al turismo alternativo. Como resultado de dicha evolución del

turismo en La Paz, un atractivo en especial ha resaltado por sobre los demás por sus

características naturales, paisajísticas y de accesibilidad; La Muela del Diablo.

Location / Ubicación - Cortesía: Arq. Arturo Espinoza

Location / Ubicación - Cortesía: Arq. Arturo Espinoza

A 16 km del centro paceño a 3.770 m.s.n.m. de altitud, en el macrodistrito de Mallasa se

encuentra la comunidad de Chiaraque, a las faldas del cerro Auqui Kollo o mejor conocido

como La Muela del Diablo. Este destino ha cobrado una importancia significativa para las

actividades de naturaleza en La Paz como el avistamiento de aves, senderismo, horseriding

y downhill en bicicleta. A parte de ello el patrimonio cultural de la comunidad Chiaraque es

bastante amplio, el cual conserva costumbres ancestrales aymaras y gastronomía andina

que es muchas veces desconocida por los visitantes.

Site analysis / Análisis del sitio - Cortesía: Arq. Arturo Espinoza

Site analysis / Análisis del sitio - Cortesía: Arq. Arturo Espinoza

Este trabajo pretende resolver mediante la arquitectura las necesidades existentes para

habitantes y visitantes en el sitio, en cuanto a servicios se refiere, también se pretende

mediante este proyecto generar alternativas sostenibles de crecimiento socio-económico

basados en el patrimonio natural y cultural del área, generando así espacios de turismo

sostenible que pretende fortalecer la identidad de los comunarios, revalorizar sus

costumbres y tradiciones generando espacios de interculturalidad junto a los visitantes.

Site plan / plano de sitio - Cortesía: Arq. Arturo Espinoza

Site plan / plano de sitio - Cortesía: Arq. Arturo Espinoza

Si bien la Muela del Diablo es un atractivo natural por excelencia de la ciudad de La Paz,

lastimosamente los visitantes en su gran mayoría llegan a pasar por la comunidad de

Chiaraque sin siquiera entrar en contacto con los comunarios, lo cual es una pésima señal

en cuanto al progreso hacia el turismo sostenible en el área, esto ha provocado un notorio

rechazo al turismo por parte de los comunarios al sentirse invisibilizados por dichos

visitantes.

Form process diagram / diagramas de proceso formal - Cortesía: Arq. Arturo Espinoza

Form process diagram / diagramas de proceso formal - Cortesía: Arq. Arturo Espinoza

Es por ello que establecer un centro de interpretación turística en la comunidad, integrándose de manera armoniosa al circuito turístico del área se hace imperativo para resolver la desconexión del visitante con la comunidad visitada.

Roof plan / plano de cubiertas - Cortesía: Arq. Arturo Espinoza

Roof plan / plano de cubiertas - Cortesía: Arq. Arturo Espinoza

Además que siendo un centro de interpretación que respeta el contexto rural del área, complementa al atractivo al representar una infraestructura y recursos turístico aprovechable por la comunidad generando una mayor interacción visitante-comunidad y rescatando los conocimientos ancestrales de la comunidad en respuesta a la constante pérdida de patrimonio cultural intangible en Chiaraque (leyendas, tradiciones, cosmovisión, rituales, etc.).

Floor plan 1 / Planta 1 - Cortesía: Arq. Arturo Espinoza

Floor plan 1 / Planta 1 - Cortesía: Arq. Arturo Espinoza

El presente proyecto pretende también generar una respuesta a 6 problemas específicos de

la comunidad y su performance frente al turismo emergente del lugar.

Floor plan 2 / planta 2 - Cortesía: Arq. Arturo Espinoza

Floor plan 2 / planta 2 - Cortesía: Arq. Arturo Espinoza

● Servicios sanitarios

Si bien en la comunidad ya existen tanques de agua que distribuyen el líquido elemento a la

comunidad, no todos tienen acceso a la misma y por ende a servicios sanitarios. Sólo

existen tres baños dentro de la comunidad que pertenecen a la Unidad Educativa de

Chiaraque, sin embargo el servicio de los mismos no está disponible para los visitantes.

Floor plan 3 / planta 3 - Cortesía: Arq. Arturo Espinoza

Floor plan 3 / planta 3 - Cortesía: Arq. Arturo Espinoza

● Servicios de salud

No existe ninguna posta de salud en el lugar, por lo que los habitantes de la comunidad se

ven obligados a movilizarse hasta la ciudad para ser atendidos y por ende los visitantes que

sienten algún malestar o sufren algún accidente en el lugar corren con la misma suerte.

Long Section / Corte Longitudinal A-A´ - Cortesía: Arq. Arturo Espinoza

Long Section / Corte Longitudinal A-A´ - Cortesía: Arq. Arturo Espinoza

● Información turística

Hace falta un espacio permanentemente abierto al público en general que brinde

información acerca de la comunidad, de la Muela del Diablo, del Valle Escondido y otros

atractivos naturales cercanos. Así como un lugar donde se registre a los visitantes del sitio

para generar datos concretos de flujo turístico que servirían para el mismo desarrollo y

crecimiento de la comunidad.

Long  section / Corte Longitudinal B-B´ - Cortesía: Arq. Arturo Espinoza

Long section / Corte Longitudinal B-B´ - Cortesía: Arq. Arturo Espinoza

● Lugar para alimentarse

El plato tradicional de Chiaraque es la Watia (comida preparada bajo tierra que emplea

piedras calientes como medio de cocción), plato que se ofrece ocasionalmente los fines de

semana, el problema es que no existe un espacio en adecuadas condiciones para brindar

este servicio, ni tampoco para fomentarlo y explotarlo turísticamente ya que se ofrece en

plena vía improvisando con una mesa y sillas de la escuela además de unas chiwiñas que

sirven de cubierta. Para el consumo de la Wathia se plantean algunos espacios

semienterrados y cubiertas con cultivos para aprovechar, al igual que la watia, la inercia

térmica que la tierra proporciona buscando un uso eficiente de energía además de

mantener este vínculo con la tierra

Cross section / Corte transversal C-C´ - Cortesía: Arq. Arturo Espinoza

Cross section / Corte transversal C-C´ - Cortesía: Arq. Arturo Espinoza

● Descanso

Si se llega hasta Chiaraque por cualquier medio, ya sea caminata, ciclismo de montaña o en

cualquier tipo de movilidad, se necesita algún lugar dentro la comunidad donde se pueda

descansar, abastecerse y luego seguir el camino hasta llegar a la Muela del Diablo.

Cross section / Corte transversal D-D´ - Cortesía: Arq. Arturo Espinoza

Cross section / Corte transversal D-D´ - Cortesía: Arq. Arturo Espinoza

● Espacios públicos

En Chiaraque hacen falta espacios tanto abiertos y cerrados para uso de los visitantes,

dirigentes o para que los comunarios puedan compartir e incluso capacitarse en vistas de su

desarrollo, un espacio donde se puedan transmitir a otras generaciones conocimientos,

historias, y tradiciones de su cultura.

Cross section / Corte transversal E-E´ - Cortesía: Arq. Arturo Espinoza

Cross section / Corte transversal E-E´ - Cortesía: Arq. Arturo Espinoza

Proceso morfológico

El concepto del diseño tiene como base la armonía con el espacio natural, respetando las

formas geométricas del área y sus diversos paisajes, creando una especie de antesala

previa a la visita al Valle Escondido y La Muela del Diablo. Esto profundiza la importancia de

la coherencia del diseño exterior con el contexto natural, más aún tomando en cuenta que

Chiaraque se encuentra dentro del área protegida municipal Muela del Diablo y Serranías

de Pachajalla.

East elevation / elevación este - Cortesía: Arq. Arturo Espinoza

East elevation / elevación este - Cortesía: Arq. Arturo Espinoza

A través de un amplio estudio de casos relacionados y numerosas visitas al lugar se

determinó que el volumen del centro de interpretación pretende emerger de la tierra, no sólo

aprovechando la topografía del lugar sino poniendo en práctica el concepto la Wathia. Dicha

infraestructura se encontraría en medio de la comunidad en lo que ahora es una chacra de

los comunarios, por lo que para no privar a los comunarios del uso de este espacio para la

práctica ancestral de la agricultura, se han planteado cubiertas con áreas de cultivos a

disposición de los comunarios.

North Elevation / Elevación Norte - Cortesía: Arq. Arturo Espinoza

North Elevation / Elevación Norte - Cortesía: Arq. Arturo Espinoza

El bloque de baños y circulaciones verticales estará orientado al suroeste, es decir, hacia el

Auqui Kollo, por ende dicho bloque tendrá una forma cóncava en reacción a la presencia de

la Muela del Diablo. Dicho bloque cóncavo estará separado del bloque mayor buscando el

ingreso de mayor cantidad de luz indirecta hacia el volumen mayor. Esta separación

sumada a la forma cóncava del bloque de baños y circulación provoca una apertura dirigida

directamente al Valle Escondido.

South Elevation / Elevación sur - Cortesía: Arq. Arturo Espinoza

South Elevation / Elevación sur - Cortesía: Arq. Arturo Espinoza

Ambos bloques son separados no sólo para dirigir la atención de los visitantes al entorno de

la comunidad incluso desde adentro del centro de interpretación, sino también busca

respetar el flujo y uso preexistente del terreno, de esta manera conecta las dos vías (una al

norte y otra al sur) a diferentes niveles, por lo que el recorrido externo es independiente al

edificio.

Interior hall / hall interior - Cortesía: Arq. Arturo Espinoza

Interior hall / hall interior - Cortesía: Arq. Arturo Espinoza

El quiebre de dichos bloques no sólo generan miradores de apreciación de los dos

principales atractivos naturales geológicos del área (Muela del Diablo y Valle Escondido)

sino que que también respetan el contexto adaptándose a los usos y necesidades de la

comunidad y utilizando el espacio para el aprovechamiento turístico sostenible del lugar,

sumando como un recurso turístico más en la infraestructura turística del destino Chiaraque.

Top floor offices / oficinal nivel superior - Cortesía: Arq. Arturo Espinoza

Top floor offices / oficinal nivel superior - Cortesía: Arq. Arturo Espinoza

Stairway / escaleras - Cortesía: Arq. Arturo Espinoza

Stairway / escaleras - Cortesía: Arq. Arturo Espinoza

Interpretation exhibit / exhibición de interpretaciones - Cortesía: Arq. Arturo Espinoza

Interpretation exhibit / exhibición de interpretaciones - Cortesía: Arq. Arturo Espinoza

View from entrance atrium / vista desde atrio de ingreso - Cortesía: Arq. Arturo Espinoza

View from entrance atrium / vista desde atrio de ingreso - Cortesía: Arq. Arturo Espinoza

Vire from vehicle access / vista desde el acceso vehicular - Cortesía: Arq. Arturo Espinoza

Vire from vehicle access / vista desde el acceso vehicular - Cortesía: Arq. Arturo Espinoza


Sobre el autor:

Arq. Arturo Espinoza

Arq. Arturo Espinoza

Arturo Fernando Espinoza Gutierrez nace en La Paz el 18 de Junio de 1991, estudió en el

colegio Ingles Católico para después titularse como arquitecto de la Universidad Católica

Bolviana “San Pablo” el año 2015, con diplomado en educación superior y en arquitectura

BIM aplicado en Edificaciones.

Trabajó con el arquitecto Alcides Torres y Nicolas Bohorquez ganando junto a ellos el concurso para las oficinas/bodegas de la empresa farmacéutica ALCOS en el año 2017; posteriormente se desempeña como modulador de encofrados alemanes MEVA en la empresa Citaf Bolivia, representantes en nuestro país de la empresa alemana.

El 2018 va a Francia por 9 meses para trabajar como asistente lingüístico y vuelve en Junio de 2019. Volviendo al país se reúne con un equipo de colegas para conformar el estudio “punto.Arquitectura”, donde actualmente trabaja desarrollando proyectos.



www.diseñobolivia.com

2020

Chullpas de Umala

Proyecto de restauración de Chullpas en el altiplano de Bolivia

En la localidad de Umala, en la provincia Aroma,

Muy cerca de la carretera Patacamaya - Tambo Quemado

Chullpas de Umala - diseñobolivia.com
Chullpas de Umala - diseñobolivia.com
Chullpas de Umala - diseñobolivia.com
Chullpas de Umala - diseñobolivia.com
Chullpas de Umala - diseñobolivia.com

El epicentro es el yacimiento arqueológico Huayllani-Cóndor Amaya, que en aimara significa sitio de paja en el que el cóndor ha muerto. En la extensión del recorrido son visibles enormes estructuras de barro y piedra, generalmente cuadrangulares, dentro de las que existe una bóveda en la que antiguamente se colocaban encogidos los restos humanos.

La técnica de edificación de estas tumbas tiene variantes, puesto que algunas son solo de arena mientras en otras está mezclada con algo de paja y piedra. Las chullpas, cuyo concepto se asemeja a las pirámides egipcias, son la "materialización de la espiritualidad que existía en el inicio del pueblo aimara", según la especialista en conservación patrimonial y encargada del proyecto, la griega Irene Delaveris.

Chullpas de Umala - diseñobolivia.com
Chullpas de Umala - diseñobolivia.com

La reconstrucción de las ‘chullpas’ es la tercera etapa de un proyecto que contó con la colaboración de la Embajada de Suiza en Bolivia, que anteriormente se realizó en los sitios arqueológicos de Culli Culli y Qiwaya, del departamento de La Paz.

Las chullpas son cuadrangulares, de colores rojizos o café, como la tierra del lugar, situadas en medio de cerros y pampas en el altiplano boliviano, resistentes al sol abrasador y al viento helado. "Hay (torres funerarias) de dos periodos (culturales), de los Señoríos Aymaras (preincaico) y otro del Inca-pacajes, en un intento de conjugar o intercambiar formas de la cultura inca".

Chullpas de Umala - diseñobolivia.com

El trabajo que se realizó entre julio y noviembre de 2018 consiguió salvar la estructura de once chullpas de un total de 28 que hay en el lugar y que tienen distintas características. Algunos habitáculos son muy grandes y pueden tener hasta unos diez metros de alto, mientras que otros solo dos, generalmente aquellos que se han derruido por el paso del tiempo.

Delaveris indicó que en el altiplano boliviano, donde abundan estos monumentos, está afincada la creencia de que las chullpas "te pueden entrar en el cuerpo y te puedes morir", lo que ello incidió indirectamente en su conservación ya que la gente evitaba acercarse. Sin embargo, estos recintos sagrados de la cultura aimara han sido objeto de "saqueos" de momias y restos humanos que en ellos se depositaban, algo "muy preocupante" porque se pierde información histórica de relevancia, advirtió.

El mito en torno a las chullpas relata que era el nombre de un pueblo que vivía de noche, con la luna, y que las puertas de sus casas debían ubicarse al este para evitar los rayos del sol que, creían, iba salir por el lado opuesto. La leyenda cuenta que cuando el sol salió por el este quemaron a las chullpas y murieron.

Chullpas de Umala - diseñobolivia.com
Chullpas de Umala - diseñobolivia.com

La costumbre de hacer chullpas nació por el siglo X y XI d.C., por parte de los denominados Señoríos Aymaras, tras el desplome de la cultura Tiahuanaco, y la práctica se extendió al periodo incaico y hasta entrada la colonia española. Estas construcciones se usaban para el sepelio de gente pudiente, de la realeza, de autoridades religiosas o militares. Son edificaciones de tierra y paja y en menor cantidad de piedra. Tienen una altura de 2 a 8 metros y de 2 a 4 de ancho y todas con una pequeña puerta de ingreso.

Por toda la zona del poblado hay un total de 39, algunas derruidas por los implacables rigores del tiempo y el clima, el único rastro de culturas pasadas.  No se conoce con precisión cuántas chullpas hay en toda la región andina de Bolivia. Sólo en el departamento de La Paz hay unas 300, según un cálculo del Ministerio de Cultura boliviano de junio de 2018. En el Perú también existen similares construcciones, algunas circulares.

Chullpas de Umala - diseñobolivia.com
Chullpas de Umala - diseñobolivia.com

"Para mí es una expresión de ingeniería única a nivel mundial, porque estas construcciones no se han construido en ninguna otra parte del mundo con esta técnica", señala deslumbrada Delaveris. Las paredes de las chullpas evidencian "una mezcla de paja entera (abundante en el lugar) con el barro" y que, por lo tanto, "genera un tejido como de los textiles", explica la arqueóloga Pero además se ha establecido que "hay un compuesto orgánico que no se ha identificado todavía, pero que puede ser el colágeno de los huesos de las llamas (auquénidos andinos) o alguna planta local que le ha dado una dureza que ha permitido la preservación por siglos".

Chullpas de Umala - diseñobolivia.com
Chullpas de Umala - diseñobolivia.com
Chullpas de Umala - diseñobolivia.com
Chullpas de Umala - diseñobolivia.com

Todas las puertas de ingreso de las chullpas de Cóndor Amaya están hacia el este, por donde sale el sol. Ello ha originado que surjan leyendas y mitos sobre maleficios del astro rey. Otras explicaciones racionales indican que el único fin era evitar los efectos del viento y la lluvia procedentes del oeste. Severina Flores, tejedora de lana y criadora de ovejas del lugar, recuerda que cuando era niña las torres funerarias causaban temor. "Antes, nunca nos acercábamos cuando era 'wawa' (niña), porque cuando nos acercábamos nos enfermábamos, pero después hemos comenzado a acercarnos, poco a poco".

Chullpas de Umala - diseñobolivia.com
Chullpas de Umala - diseñobolivia.com
Chullpas de Umala - diseñobolivia.com

Por el lugar circula la versión de un vecino, don Estanislao Colque, quien dice que las torres preincaicas "vivían con la luna" y "caminaban por la tierra" hace mucho tiempo.  Entre los castigos mitológicos, cuenta don Estanislao, la tierra cambió de posición y el sol dejó de salir por el oeste y nació en algún tiempo por el este, "quemando" a las chullpas que tenían su dirección en sentido contrario. "Es un mito, pero valioso, porque la mitología es también parte del patrimonio", agrega Delaveris.



Créditos

Chullpas de Umala

Responsable de proyecto: Lic. Irene Delaveris (TEI Athens) - Esp. Guido Mamani

Ubicación: Umala, Provincia Aroma, departamento de La Paz, Bolivia

Año de proyecto de restauración 2018-2019

Año de obra: 2020

Fuentes: ANF / EFE


www.diseñobolivia.com

2020


Dennise Fernandez - Hogar para el adulto mayor

Hogar para el adulto mayor - Arq. Dennise Fernandez

La Paz, Bolivia

Arq. Dennise Fernandez, La Paz, Bolivia.

Arq. Dennise Fernandez, La Paz, Bolivia.

HOGAR PARA EL ADULTO MAYOR | LA PAZ – BOLIVIA | MACRODISTRITO 19 | ZONA SUR

CARÁCTER HUMANO “La vejez es una etapa de la vida que no se puede frenar. Actualmente el adulto mayor sufre un rechazo de la sociedad, asignándole el vacío, la incertidumbre económica y la soledad dada por el aislamiento, lo que provoca el desconocimiento de su rol en la sociedad, sus derechos y obligaciones”. VIII Congreso Internacional de Universidades de Tercera Edad - El envejecimiento de la sociedad, su humanización y el compromiso de la Tercera Edad.

Actualmente la importancia del adulto mayor ha decaído, tomando el lugar de un extraño ante la sociedad, volviendo así la urbe en un escenario enigmático. Las generaciones de personas de la tercera edad viven ahora una realidad diferente, por lo que requieren respuestas nuevas que se adapten a un mundo que está en constante cambio, en el que todas las expresiones: ideas políticas, los valores éticos, la economía, las comunicaciones, la cultura, tienden a integrarse. Bolivia está en el puesto 55 de 96 países en el índice global del envejecimiento Agewach, que mide el bienestar social y económico de las personas mayores de 60 años.

Uno de los puntos más alarmantes es la economía del sector con una tasa de pobreza en la vejez del 30,3 %, lo que sugiere que los ingresos económicos no satisfacen las necesidades básicas. Por ello se plantea la necesidad de trabajar en la construcción de espacios, que permitan a las personas envejecer con dignidad y seguridad. El problema como tal radica en el municipio de La Paz por los siguientes factores:

• Alta población adulto mayor, 30,8% de los adultos mayores se encuentran en La Paz

• Tasa de pobreza del 43.4% de la población, e indigencia de 21.8 %.

• Incumplimiento de los derechos del adulto mayor.

• Déficit de espacios (óptimos) para el desarrollo del adulto mayor.

• Sólo en el municipio de La Paz existen cerca de 100.000 personas de la tercera edad; de ellas, el 80% vive en estado de vulnerabilidad, ya sea leve o extrema.

El Dinamismo social en el que estamos excluye la expectativa de vida de este grupo de personas. Tomando el significado de vida, como subsistencia, cuando por el contrario es un estado natural y no una enfermedad.

El adulto mayor es una realidad, es la etapa final del ciclo de vida del ser humano y por ello vale la pena apostar por una vida dignificada. “Bajo el lema planificando para un mundo mayor que, por un lado convoca a la celebración, porque el envejecimiento de la humanidad representa un triunfo de la civilización, una admirable conquista de la ciencia y la tecnología modernas a favor de la vida y por otro, invita a las generaciones más jóvenes a extraordinarios desafíos, a los que se debe responder con inteligencia, responsabilidad, sensibilidad e imaginación”.

“Para un arquitecto, más que la habilidad de imaginar espacios, lo importante es la capacidad de imaginar la vida”. Aulas Blomstedt

Uno de los principales beneficios del proyecto es que el sector intervenido está en proceso de urbanización, lo cual permite al proyecto direccionar de algún modo un estilo o imagen arquitectónica. Que guie a futuras edificaciones a un mismo lenguaje el cual busqué generar espacios comunes. El Hogar para el Adulto Mayor tiene por objetivo generar espacios de interacción entre la comunidad y el adulto mayor. Fortaleciendo vínculos sociales.

Arquitectura es aquello que podemos ver y tocar, tan sólido y concreto, mediante la cual podemos direccionar acciones del usuario. Invitarlo a recorrer espacios con determinadas intensiones. En este caso la de convivir, sociabilizar e interactuar con nuestro usuario: el adulto mayor.

Hogar para el adulto mayor - Cortesía: Arq. Dennise Fernandez

Hogar para el adulto mayor - Cortesía: Arq. Dennise Fernandez

Hogar para el adulto mayor - Cortesía: Arq. Dennise Fernandez

Hogar para el adulto mayor - Cortesía: Arq. Dennise Fernandez

Hogar para el adulto mayor - Cortesía: Arq. Dennise Fernandez

Hogar para el adulto mayor - Cortesía: Arq. Dennise Fernandez

Hogar para el adulto mayor - Cortesía: Arq. Dennise Fernandez

Hogar para el adulto mayor - Cortesía: Arq. Dennise Fernandez

Hogar para el adulto mayor - Cortesía: Arq. Dennise Fernandez

Hogar para el adulto mayor - Cortesía: Arq. Dennise Fernandez

Hogar para el adulto mayor - Cortesía: Arq. Dennise Fernandez

Hogar para el adulto mayor - Cortesía: Arq. Dennise Fernandez

Site plan / Planimetría y cubiertas - Cortesía: Arq. Dennise Fernandez

Site plan / Planimetría y cubiertas - Cortesía: Arq. Dennise Fernandez

Hogar para el adulto mayor - Cortesía: Arq. Dennise Fernandez

Hogar para el adulto mayor - Cortesía: Arq. Dennise Fernandez

Hogar para el adulto mayor - Cortesía: Arq. Dennise Fernandez

Hogar para el adulto mayor - Cortesía: Arq. Dennise Fernandez

Hogar para el adulto mayor - Cortesía: Arq. Dennise Fernandez

Hogar para el adulto mayor - Cortesía: Arq. Dennise Fernandez

Hogar para el adulto mayor - Cortesía: Arq. Dennise Fernandez

Hogar para el adulto mayor - Cortesía: Arq. Dennise Fernandez

Hogar para el adulto mayor - Cortesía: Arq. Dennise Fernandez

Hogar para el adulto mayor - Cortesía: Arq. Dennise Fernandez

Hogar para el adulto mayor - Cortesía: Arq. Dennise Fernandez

Hogar para el adulto mayor - Cortesía: Arq. Dennise Fernandez

Hogar para el adulto mayor - Cortesía: Arq. Dennise Fernandez

Hogar para el adulto mayor - Cortesía: Arq. Dennise Fernandez

Hogar para el adulto mayor - Cortesía: Arq. Dennise Fernandez

Hogar para el adulto mayor - Cortesía: Arq. Dennise Fernandez

Hogar para el adulto mayor - Cortesía: Arq. Dennise Fernandez

Hogar para el adulto mayor - Cortesía: Arq. Dennise Fernandez

Hogar para el adulto mayor - Cortesía: Arq. Dennise Fernandez

Hogar para el adulto mayor - Cortesía: Arq. Dennise Fernandez

Hogar para el adulto mayor - Cortesía: Arq. Dennise Fernandez

Hogar para el adulto mayor - Cortesía: Arq. Dennise Fernandez

Hogar para el adulto mayor - Cortesía: Arq. Dennise Fernandez

Hogar para el adulto mayor - Cortesía: Arq. Dennise Fernandez

Hogar para el adulto mayor - Cortesía: Arq. Dennise Fernandez

Hogar para el adulto mayor - Cortesía: Arq. Dennise Fernandez

Hogar para el adulto mayor - Cortesía: Arq. Dennise Fernandez

Hogar para el adulto mayor - Cortesía: Arq. Dennise Fernandez

Hogar para el adulto mayor - Cortesía: Arq. Dennise Fernandez

Hogar para el adulto mayor - Cortesía: Arq. Dennise Fernandez

Hogar para el adulto mayor - Cortesía: Arq. Dennise Fernandez

Hogar para el adulto mayor - Cortesía: Arq. Dennise Fernandez



Sobre la autora:

Arq. Dennise Fernandez

Cortesía: Arq. Dennise Fernandez

Cortesía: Arq. Dennise Fernandez

Dennise Fernandez (1993) Fotógrafa y arquitecta boliviana, realizó sus estudios en la Facultad de artes, arquitectura, diseño y urbanismo en la universidad Mayor de San Andrés (FAADUUMSA).

En el transcurso de su formación ha participado en diversas conferencias, cursos y talleres. De manera colectiva ha obtenido mención y tercer lugar en dos ediciones del concurso Centralidades Urbanas (Mallasa 2018) (Achumani 2019).

En la actualidad se desempeña como consultor en colaboración con el grupo Zalles arquitectos.

Como fotógrafa forma parte del equipo Fotofest (Festival Internacional de Fotografía Boliviana) ha participado de diversas exposiciones colectivas en Bolivia y Chile.

Habilitada en convocatorias, concursos, laboratorios fotográficos y revisión de portafolios. Ha colaborado en tres publicaciones editoriales. Su trabajo está centrado en narrativas personales, enfoca la fotografía como lenguaje sobre la expresión de las emociones y la memoria.


diseñobolivia.com

2020



Jorge Rios B. - Doble Piel

Arq. Jorge Rios Barrón - DOBLE PIEL

Arq. Jorge Rios B. - Doble Piel

Arq. Jorge Rios B. - Doble Piel

Arq. Jorge Rios B. - Doble Piel

Arq. Jorge Rios B. - Doble Piel

Del autor / from the autor:

EDIFICIO ROMERO Arquitecto Jorge Ríos Barrón, La Paz, Bolivia El edificio se encuentra ubicado en la zona de San Miguel de La Paz, consta de 5 pisos y 550 m2 construidos para uso de oficinas. Se implanta sobre un pequeño terreno de solo 240 m2, privilegiando la orientación Noroeste y obedeciendo a rígidos parámetros Municipales de edificación en cuanto a retiros, áreas de parqueo vehicular y volumen de la edificación. Al interior las circulaciones se ubican al Sur permitiendo una mayor superficie de uso de oficinas en planta libre al Noroeste, donde el cerramiento de las fachadas utiliza energía solar pasiva mediante dos pieles de vidrio y policarbonato con estructura metálica y aluminio separadas por un vacío de 0.50 m que actúa como aislante térmico y sonoro además de permitir la limpieza y mantenimiento, esas fachadas rematan en la parte superior en una celosía metálica que permite el escape natural de aire caliente concentrado en el vacío cuando se requiera. La imagen arquitectónica contemporánea de total transparencia y ligereza se resalta en la noche mediante reflectores entre ambas pieles.

English Summary Romero Building The building is located in San Miguel, La Paz, it has 5 floors and 550 square meters of construction for offices. It is placed in a small lot of only 240 square meters, facing NW and obeying the rigid municipal building parameters for set-backs, vehicle parking and floor area & volume. Inside the circulating areas are located towards the south allowing a larger open floor area to the north west, where the façade closing uses passive solar energy through 2 skins made of glass and polycarbonate and structures of steel and aluminum are separated by a 50cm. gap, allowing hot air flow and vertical exhaust ventilation. The contemporary architectural image of total transparency and lightness is more noticeable at night with lighting in between the two skins.

Arq. Jorge Rios B. - Doble Piel

Arq. Jorge Rios B. - Doble Piel

Arq. Jorge Rios B. - Doble Piel

Arq. Jorge Rios B. - Doble Piel

Arq. Jorge Rios B. - Doble Piel

Arq. Jorge Rios B. - Doble Piel

Arq. Jorge Rios B. - Doble Piel

Arq. Jorge Rios B. - Doble Piel

Arq. Jorge Rios B. - Doble Piel

Arq. Jorge Rios B. - Doble Piel

Arq. Jorge Rios B. - Doble Piel

Arq. Jorge Rios B. - Doble Piel

Arq. Jorge Rios B. - Doble Piel

Arq. Jorge Rios B. - Doble Piel

Arq. Jorge Rios B. - Doble Piel

Arq. Jorge Rios B. - Doble Piel

Arq. Jorge Rios B. - Doble Piel

Arq. Jorge Rios B. - Doble Piel

Arq. Jorge Rios B. - Doble Piel

Arq. Jorge Rios B. - Doble Piel

Arq. Jorge Rios B. - Doble Piel

Arq. Jorge Rios B. - Doble Piel

Arq. Jorge Rios B. - Doble Piel

Arq. Jorge Rios B. - Doble Piel

Arq. Jorge Rios B. - Doble Piel

Arq. Jorge Rios B. - Doble Piel

Arq. Jorge Rios B. - Doble Piel

Arq. Jorge Rios B. - Doble Piel

Arq. Jorge Rios B. - Doble Piel

Arq. Jorge Rios B. - Doble Piel

Arq. Jorge Rios B. - Doble Piel

Arq. Jorge Rios B. - Doble Piel

Arq. Jorge Rios B. - Doble Piel

Arq. Jorge Rios B. - Doble Piel

Arq. Jorge Rios B. - Doble Piel

Arq. Jorge Rios B. - Doble Piel

Arq. Jorge Rios B. - Doble Piel

Arq. Jorge Rios B. - Doble Piel

Arq. Jorge Rios B. - Doble Piel

Arq. Jorge Rios B. - Doble Piel

Arq. Jorge Rios B. - Doble Piel

Arq. Jorge Rios B. - Doble Piel

Arq. Jorge Rios B. - Doble Piel

Arq. Jorge Rios B. - Doble Piel

Arq. Jorge Rios B. - Doble Piel

Arq. Jorge Rios B. - Doble Piel

EDIFICIO ROMERO – Oficinas

Arquitecto: Jorge Ríos Barrón,

Ubicación: La Paz, Bolivia

Superficie de Lote: 240m2

Superficie construida: 550m2

Año: 2011

Julio Lopez B. - El Arca

“EL ARCA” – Arq. Julio Lopez B. & Arq. Claudia Gisbert F.

Julio Lopez B. - El Arca

Julio Lopez B. - El Arca

Julio Lopez B. - El Arca

Julio Lopez B. - El Arca

“EL ARCA” – Arq. Julio Lopez B. & Arq. Claudia Gisbert F.

Texto de los autores: El encargo del Departamento de Pastoral de la UCB, fue el diseñar y construir un espacio que se constituya en un referente de nobleza y sencillez dentro del campus universitario, un espacio que sea el corazón que siempre late, un ámbito en el cual se pueda confirmar un acuerdo momentáneo o permanente, un objeto que esté orgánicamente integrado con su entorno físico inmediato. La obra, se ubica dentro del Campus de la Universidad Católica Boliviana en la Zona de Obrajes. Su emplazamiento se resuelve en la parte central del jardín principal, donde existen varias especies vegetales, muchas de estas de gran valor y altura, constituyendo parte del patrimonio con el que cuenta la Universidad. La capilla está rodeada por estas especies, como si fuesen sus eternos vigilantes. Se trabajó bajo el concepto de que un proyecto es sostenible si estimula los sentidos, este fue el hilo conductor a lo largo del proyecto. La capilla tiene una orientación que permite la ubicación de un gran ventanal, enmarcado por un alto muro revestido de piedra laja, mostrando como fondo los cerros formaciones de barro característicos de la ciudad de La Paz. Cuenta además con 65 ventanas pequeñas y alargadas, simulando ser fracturas en el muro y otorgándole al espacio una sensación de liviandad y temporalidad, cuenta con dos ingresos de cristal uno orientado al naciente y el otro al poniente. La forma es muy sencilla (como debió ser el arca) definida por un solo muro revestido interior y exteriormente de madera. El espacio es exteriormente comprensible e interiormente misterioso por la sensación de “presente” que provoca su interioridad, es como estar de pie en un gran vacío (piso y cielo falso color negro) donde lo único reconocible es la envolvente de madera que simula ser un abrazo. Exteriormente esta rodeada de una acera de madera perimetral cuyas piezas están colocadas de manera radial que actúa como la pieza articuladora entre el volumen y el jardín que lo rodea. El complemento paisajístico, es un jardín cuyo diseño en base a líneas zigzagueantes, simulan ser olas en movimiento, las que irán cambiando de coloración según las estaciones del año.

Julio Lopez B. - El Arca

Julio Lopez B. - El Arca

Julio Lopez B. - El Arca

Julio Lopez B. - El Arca

Julio Lopez B. - El Arca

Julio Lopez B. - El Arca

Julio Lopez B. - El Arca

Julio Lopez B. - El Arca

Julio Lopez B. - El Arca

Julio Lopez B. - El Arca

Julio Lopez B. - El Arca

Julio Lopez B. - El Arca

Julio Lopez B. - El Arca

Julio Lopez B. - El Arca

Julio Lopez B. - El Arca

Julio Lopez B. - El Arca

Julio Lopez B. - El Arca

Julio Lopez B. - El Arca

Julio Lopez B. - El Arca

Julio Lopez B. - El Arca

Julio Lopez B. - El Arca

Julio Lopez B. - El Arca

Julio Lopez B. - El Arca

Julio Lopez B. - El Arca

Julio Lopez B. - El Arca

Julio Lopez B. - El Arca

Julio Lopez B. - El Arca

Julio Lopez B. - El Arca

Julio Lopez B. - El Arca

Julio Lopez B. - El Arca

Julio Lopez B. - El Arca

Julio Lopez B. - El Arca

Julio Lopez B. - El Arca

Julio Lopez B. - El Arca

Julio Lopez B. - El Arca

Julio Lopez B. - El Arca

Julio Lopez B. - El Arca

Julio Lopez B. - El Arca

Julio Lopez B. - El Arca

Julio Lopez B. - El Arca

Julio Lopez B. - El Arca

Julio Lopez B. - El Arca

Julio Lopez B. - El Arca

Julio Lopez B. - El Arca

Julio Lopez B. - El Arca

Julio Lopez B. - El Arca

Julio Lopez B. - El Arca

UBICACIÓN: Campus Universidad Católica Boliviana “San Pablo”, La Paz, Bolivia.

AÑO: 2009-2010

Superficie sector de intervención: 300m2 aprox.

Superficie cubierta: 55m2

Planos: Arq. J.Lopez & C. Gisbert

Fotografías: Diseño Bolivia, Alex Revilla

Centralidades Urbanas V3.0

logo-concursos-4_s.jpg
 

FELICITACIONES a todos los equipos participantes en los Concursos Nacionales de Centralidades Urbanas GAMLP v3.0 y especialmente a los equipos galardonados.

Participar en una modalidad de concurso de estas características es un gran esfuerzo que requiere de mucha dedicación, una gran inversión de tiempo y recursos y gran compromiso con la disciplina que normalmente no es percibido, ni reconocido por la sociedad en la magnitud que merece, por lo tanto todos los participantes merecen un reconocimiento especial en ese deseo de aportar al desarrollo de La Paz.

Un gran reto para comprender la ciudad, sus complejidades y necesidades; Y una excelente oportunidad para reflexionar, y proponer soluciones desde el urbanismo, la infraestructura y la arquitectura.

Las cualidades y condiciones de la convocatoria han definido que en gran medida se presenten brillantes respuestas arquitectónicas y hermosas propuestas estéticas, las cuales luego de un arduo y serio trabajo de factibilidad urbanística, de diseño final, y de factibilidad financiera tendrían el potencial para convertirse en un gran aporte en los barrios de La Paz.

Es notable el alto número de participantes tomando en cuenta el tiempo limitado para la elaboración de proyectos.

Es importante el esfuerzo técnico de los equipos para producir un material gráfico de muy alta factura, entre planos técnicos, representaciones en imágenes y modelos a escala, material que ha sido sin duda el protagonista de las propuestas, realzando el oficio de la Arquitectura que muestra mucha dedicación y un gran nivel en nuestro medio.

Los resultados del proceso también reflejan 2 aspectos muy claros e interesantes, primero que los equipos multidisciplinarios han comprendido el planteamiento de Centralidad Urbana como la aplicación de un enfoque netamente arquitectónico-estético, proporcionando también en un buen número de casos soluciones de funcionamiento claramente enmarcadas -al interior- de sus respectivas áreas de intervención; Y el segundo aspecto, las edades promedio de los equipos son refrescantemente bajas, eso se refleja en el alto grado de imaginación y entusiasmo de las propuestas, y finalmente eso nos demuestra lo que podemos esperar de una generación nueva de profesionales con mucha proyección ¡hacia adelante!

Centralidad Achumani - modelo a escala // Cortesía Gallardo / Costa du Rels, Oficina de Arquitectura

Centralidad Achumani - modelo a escala // Cortesía Gallardo / Costa du Rels, Oficina de Arquitectura

Centralidad Achumani - interpretación artística // Cortesía: Gallardo-Costa du Rels, Oficina de Arquitectura

Centralidad Achumani - interpretación artística // Cortesía: Gallardo-Costa du Rels, Oficina de Arquitectura

Centralidad Tembladerani - Modelo a escala // Cortesía: Laboratorio Urbano

Centralidad Tembladerani - Modelo a escala // Cortesía: Laboratorio Urbano

Centralidad Tembladerani - Representación artística // Cortesía: Laboratorio Urbano

Centralidad Tembladerani - Representación artística // Cortesía: Laboratorio Urbano

Javier Bedoya Sáenz - CIDES-UMSA

Arq. Javier Bedoya Sáenz, La Paz, Bolivia

Imagen Cortesía Arq. Javier Bedoya S.

Imagen Cortesía Arq. Javier Bedoya S.

El Arquitecto Javier Bedoya Sáenz propone un edificio que se adapta a las condiciones económicas, funcionales y de crecimiento en el tiempo para un importante Centro de Investigaciones.

Imagen Cortesía Arq. Javier Bedoya S.

Imagen Cortesía Arq. Javier Bedoya S.

Imagen Cortesía Arq. Javier Bedoya S.

Imagen Cortesía Arq. Javier Bedoya S.

Imagen Cortesía Arq. Javier Bedoya S.

Imagen Cortesía Arq. Javier Bedoya S.

Imagen Cortesía Arq. Javier Bedoya S.

Imagen Cortesía Arq. Javier Bedoya S.

Imagen Cortesía Arq. Javier Bedoya S.

Imagen Cortesía Arq. Javier Bedoya S.

Imagen Cortesía Arq. Javier Bedoya S.

Imagen Cortesía Arq. Javier Bedoya S.

Imagen Cortesía Arq. Javier Bedoya S.

Imagen Cortesía Arq. Javier Bedoya S.

Imagen Cortesía Arq. Javier Bedoya S.

Imagen Cortesía Arq. Javier Bedoya S.

Imagen Cortesía Arq. Javier Bedoya S.

Imagen Cortesía Arq. Javier Bedoya S.

Imagen Cortesía Arq. Javier Bedoya S.

Imagen Cortesía Arq. Javier Bedoya S.

Imagen Cortesía Arq. Javier Bedoya S.

Imagen Cortesía Arq. Javier Bedoya S.

Imagen Cortesía Arq. Javier Bedoya S.

Imagen Cortesía Arq. Javier Bedoya S.

Del autor:

MEMORIA DEL PROYECTO

El Postgrado en Ciencias del Desarrollo (CIDES), perteneciente a la Universidad Mayor de San Andrés, es una unidad académica multidisciplinaria, especializada en la formación de postgrado y la investigación, fundada en 1984.

En un principio hacía uso de aulas y espacios pertenecientes a la Carrera de Artes de la UMSA, pero a principios del 2000, la institución logró adquirir un predio ubicado en la avenida 14 de septiembre y la calle 3 de la zona de Obrajes. Este predio constaba de dos viviendas y se le agregó lateralmente una construcción para albergar allí una de las bibliotecas más completas que existen en Bolivia sobre temas de Ciencias Políticas, Sociología y Desarrollo.

Mientras la vivienda principal, que era de dos pisos y daba a la avenida 14 de septiembre, fue utilizada como oficinas y aulas, la posterior fue utilizada como oficinas para investigadores invitados.

En el 2016, por problemas geológicos de todo el sector que se tradujeron en rajaduras muy profundas y descompensaciones estructurales, CIDES-UMSA tomó la decisión de demoler la vivienda principal, lo que los obligó a alquilar una vivienda próxima para oficinas y reducir su oferta académica.

A solicitud de la entonces Directora, la Mg. Cecilia Salazar, como ex alumno de dicha institución, se me invita para diseñar un proyecto arquitectónico que tomara en cuenta tres aspectos:

i) Dotar a la institución, de manera gradual, de oficinas, aulas, biblioteca y un auditorio para 100 personas,  ii) solucionar la estabilidad del suelo de modo de garantizar la estabilidad del proyecto, y iii) plantear un sistema constructivo por etapas y con materiales tradicionales y bajo costo.

Para responder a los requisitos de estabilización del terreno se propuso armar un cajón de hormigón armado compuesto por losa radier, muros de contención, columnas y vigas, que pueda soportar cualquier tipo de asentamiento del suelo o presiones del terreno superior, donde se ubicarían los parqueos y que aprovecharía el desnivel de la avenida. Una segunda consideración que se tomó frente a este problema fue la de colocar el edificio en la parte delantera del terreno, de modo que se pudieran realizar las excavaciones con taludes incluso menores a los 45º.

Para solucionar los temas de costos y la dotación de los espacios requeridos, y en función al presupuesto que en ese entonces disponía la institución, se propuso construir todo el edificio como un contenedor vacío y solamente las dos primeras plantas, de modo que posteriormente se pudiera ir subiendo el cielo falso para ir vaciando las losas donde fuera necesario y en función a los requerimientos que hubieran. Recién en la última etapa se montaría el ascensor y se colocaría toda la estructura metálica frontal y posterior que es la que se encargaría de controlar el tema de radiación solar y permitiría la limpieza exterior de todo el edificio.

Por último, el material que se utilizaría para todo el exterior sería ladrillo rústico visto, las divisiones interiores estarían hechas con vidrio templado y esmerilado de 10mm. y muros de drywall con aislación acústica al centro y los pisos serían de cerámica para alto tráfico.

Otro espacio que fue considerado desde el inicio como muy importante fue el del atrio del edificio, que no solo debía contemplar el acceso universal, sino que debía servir como un punto de encuentro y de descanso de los estudiantes. Se propuso un espacio muy limpio, manejado solamente con textura en el piso y mobiliario urbano prefabricado de hormigón generando los espacios de reunión y descanso.

PROYECTO CIDES-UMSA

Autor: Arq. Javier Bedoya Sáenz

Superficie proyectada: 1.750.00 m2.

Fecha de proyecto: 2017

Imagen Cortesía Arq. Javier Bedoya S.

Imagen Cortesía Arq. Javier Bedoya S.

Mauricio Arduz - TaAL

Arquitecto Mauricio Arduz V. - Teatro al Aire Libre,

La Paz, Bolivia

mauricio arduz - diseñobolivia.com

Concept sketch / Boceto conceptual (nocturno) - Cortesía: Arq. Mauricio Arduz

TaAL - (Teatro al Aire Libre) La Paz, Bolivia.

El proyecto es un encargo de la oficina del Alcalde de La Paz para retomar una remodelación abandonada para el Teatro al Aire Libre de la ciudad.

El TaAL se encuentra en una ubicación privilegiada en el centro de la ciudad, en un nodo de intersección de flujos que atraviesan el tejido urbano de este a oeste y de norte a sur.

mauricio arduz - diseñobolivia.com

Entrance level floor plan / Planta a nivel de ingreso principal - Cortesía: Arq. Mauricio Arduz

Se procedió a realizar una investigación para encontrar las causas del deterioro de la estructura antigua y se realizaron estudios geotécnicos de gran profundidad. Se encontró que el sitio de implantación fue utilizado como el depósito de desechos sólidos en la década de los años 1930 por lo que el suelo era muy débil.

mauricio arduz - diseñobolivia.com

Lateral schematics showing vertical structure grid and foundations / Esquema lateral, muestra costillas estructurales y fundaciones - Cortesía: Arq. Mauricio Arduz

El partido arquitectónico asume una estrategia para desarrollar una estructura monolítica con un mínimo uso de elementos arquitectónicos, se decide utilizar una cascara de hormigón armado con nervaduras empotradas que surgen de fundaciones puntuales muy profundas arriostradas por una parrilla de hormigón sub-superficial.

La geometría de la cascara es definida por una triple curvatura en los ejes X - Y – Z

mauricio arduz - diseñobolivia.com

View from the South / Vista desde el Sur - Cortesía: Arq. Mauricio Arduz // Foto: Pankkara Larrea S.

El acabado de la estructura monolítica estaba previsto como hormigón visto con la textura del encofrado, la estructura se rodea de una fosa de áridos y reflectores halógenos orientados a resaltar la textura del hormigón Las puertas corredizas de acero se proyectan con pintura azul, el color que se pintan las puertas de la región andina para ahuyentar a los malos espíritus,

mauricio arduz - diseñobolivia.com

Cross sections at several points / Cortes transversales - Cortesía: Arq. Mauricio Arduz

Arquitecto Mauricio Arduz

Panorámica desde el Oeste - Foto: Mario Crespo

mauricio arduz - diseñobolivia.com

Detail section at central booth / Sección detalle en el palco central - Cortesía: Arq. Mauricio Arduz

mauricio arduz - diseñobolivia.com

Panoramic aereal view / Panoramica aerea - Cortesía: Arq. Mauricio Arduz // Foto: Javier Vera M.


Ficha Técnica:

- Arquitectura & concepto estructural: Arq. Mauricio Arduz V.

- Ingeniería Civil y Cálculo estructural: Ing. Ernesto Revilla & Ing. Mario Ybarnegaray

- Ingeniería eléctrica: Ing. José Unzueta

- Ingeniería Hidro-sanitaria: Ing. L. F. Gamez

- Asistentes de arquitectura: Arq. Juan Pablo Alfaro + Arq. Cintia Delgado

- Ubicación: La Paz, Bolivia

- Año proyecto: 2005

- Año ejecución de obra: 2006

- Fotografías: Pankkara Larrea // Javier Vera // Mario Crespo

www.arduz.com


www.diseñobolivia.com

2016

Casa Villanueva, Arq. Emilio Villanueva.

La época neocolonial de Villanueva no fue una de las etapas mas afortunadas de su obra, pues en este estilo es débil y carente de creatividad. Pero si fue indispensable en el camino que recorrió su obra que definiría su rol como el arquitecto boliviano más importante del siglo XX.

En origen la residencia del arquitecto, de planta casi rectangular, se emplaza en el solar dejando retiros en los cuatro lados perimetrales. Organizada a partir de un zaguán y un patio central, en cuyo lado norte ubica las escaleras, dispone las áreas funcionales en los tres lados restantes, y en la planta alta diseña un corredor que da acceso a las dependencias frontales y a la terraza posterior.

Influenciado por el así llamado estilo internacional, esta residencia efita compromisoscon cubiertas de paños inclinados y prefiere una plana que queda escondida por un parapeto perimetral.

La fachada frontal esta compuesta por tres elementos fundamentales: el pórtico de ingreso con cajón sobresalido con balcón superior influenciado claramente por la portada de la iglesia de san francisco, con la misma forma de arco trilobulado tallado en piedra; el balcón en esquina con carpintería de madera y tableros tallados con motivos florales barrocos; y la ventana sobresalida con cubierta de teja y rejería sobrepuesta. El resto de los vanos tienen arco de medio punto.

Fotografías: d.b

(texto y planos extraídos del libroArq. Historicista” por: Arq. Jose Luis costa B.)

Javier Bedoya S. - Casa Cubo

Arq. Javier Bedoya S. – Casa Bedoya – Calero

La vivienda esta basada en el concepto de que debe albergar un núcleo familiar que consta de 4 personas (padres e hijas), acostumbrado a desarrollar todas sus actividades hogareñas de forma compartida; es por esto que la construcción es unvolumen geométrico de 8 metros de frente por 11 de profundidad y 6 de alto, en el que se introducen dos planta en forma de “o”, dejando el espacio central de 3x3m como un patio cubierto en el que se encuentra una fuente de agua (elemento básico de la naturaleza), que cumple la función del estar privado de la familia; todos los otros espacios a excepción de los baños se encuentran relacionados con este, ya sea visual o espacialmente.

En la planta baja, en el eje central formado por la fuente de agua y el ingreso, se encuentra otro espacio importante donde esta la chimenea (fuego como elemento básico de la naturaleza) cuya intención es la de ofrecer a los amigos y a las visitas un sentido de calor y abrigo.

Aunque la casa tiene todos los ambientes de una vivienda típica media: estar-comedor, escritorio y cocina en planta baja y dormitorios enplanta alta, estos son utilizados y percibidos desde cualquier punto de la casa, lo que de alguna manera permite una total participación familiar tanto del espacio como de las actividades propias de sus componentes. Por otra parte, para la persona o amigo que visita la casa, esta no tiene ningún secreto; apenas traspasado el umbral, se percibe la sensación de familiaridad en su espacio.

Terreno: 340m2

Área: 176m2

Proyecto: 1992

Construcción: 1993

Casa Medeiros, Arq. Gustavo Medeiros A.

Casa Medeiros, Arq. Gustavo Medeiros, La Paz, Bolivia

Un entorno de cerros arcillosos y el sol del altiplano a 3,300 metros sobre el nivel del mar fueron factores preponderantes en el diseño de esta vivienda construida para el propio arquitecto proyectista y su familia.

El lote de 20 x 30m. se abre hacia la calle “21”, al oeste, y hacia un pasaje hacia su costado este. La casa se emplazo a 45 grados con respecto al terreno, a fin de garantizar el máximo asoleamiento en las 4 estaciones, los que se tradujo en un partido arquitectónico efectivo y único en esta ciudad. Esencialmente el diseño fue concebido a partir de la geometría del cuadrado, mediante el manejo de pilastras portantes de ladrillo, sin muros interiores. Así se desarrollo la edificación alrededor de un patio central, en torno al cual gira la solución de la vivienda, y cuyo espacio central en doble altura se integra en planta baja con el espacio social y sube a la planta alta con un vacio cubierto por bóvedas de plástico translucido al que circundan los dormitorios baños y solarios.

Este patio central cubierto se caracteriza por la escalera en caracol, suspendida de las vigas de madera que arman la cubierta de bóvedas plásticas. Los peldaños se sostienen por viguetas de maderasujetadas a una estrella de metal que pende de un haz de cables en tensión.

La solución constructiva adoptada resulta inusual en el medio, consiste en los ya citados muros portantes de ladrillo visto tanto en el interior y en el exterior, con encadenados de hormigón armado, y proceso de instalación de carpinterías e instalaciones a medida que se elevaba la obra de fábrica.

La forma y disposición de las aperturas fue objeto de un estudio particular en relación con el sol y las visuales con los paisajes vecinos, además del aprovechamiento que quería darse sobre los distintos solarios.

Las ventanas en esquina permitieron en consecuencia un asoleamiento necesario y suficiente en todas las estaciones del año.

Las ventanas horizontales están dispuestas a diferentes alturas del recorrido interno, según la posición de uso de los muebles, a fin de disfrutar del paisaje circundante sin que se experimente una falta de privacidad en los espacios íntimos, ni se sufran obstrucciones de primer plano de las casas vecinas.

Todos los ambientes interiores carecen de tabiques, salvo la necesaria separación con los ambientes de servicio. En planta alta los tabiques interiores que dan al espacio central son de madera y constituyen la parte posterior de los roperos, en tanto que otras aberturas se cierran con paneles movedizos o quedaron abiertas al espacio común.

Los ladrillos son de traba especialmente compuesta con enteros, medios y cuartos, fabricados ex profeso con base en viejas matrices, ya en desuso por la fábrica. Han sido expuestos al natural en exteriores y un encerado que oscurece ligeramente el color de la cerámica en interiores, en las vigas de coronamiento exteriores se formo un remate con hileras de ladrillo que crearon una línea de contraste con el color intenso del cielo altiplánico.

Ubicación: Calle “21” Calacoto

Construccion: 1970

Terreno: 600m2

Area construida: 285m2

Fotografias: Gustavo Medeiros, Armando Urioste

Casa Crespo, Arq. Carlos Villagomez P.

Casa Crespo – Arq. Carlos Villagomez

La Casa Crespo es una obra que consideró los siguientes parámetros de diseño:

– Concebir una pequeña residencia como un puente que corta un bloque acristalado que está al borde de un risco y que se abre al valle de la ciudad de La Paz.

– Lograr desde el ingreso una promenade arquitectónica a través de un puente que desprende al usuario del plano terrenal y lo proyecta hacia el valle paceño.

– Diseñar una obra simple y compacta sin artilugios ni deudas con las formas exuberantes de la arquitectura residencial en La Paz.

Año: 2004

Imágenes cortesía blog del autor: carlosvillagomez.blogspot.com/

Casa Salinas, Arq. Alfonso Salinas.

Casa Salinas, Arq. Alfonso Salinas

La casa de bóvedas resuelve en un solo volumen dos viviendas pareadas de 154m2 construidos, independientes entre si.

El proyecto busco combinar las bóvedas tanto de cañón como de crucería en distintos niveles, cuyo movimiento producido por su imbricación, hace que las plantas de trazos ortodoxos (salvo por algunos muros diagonales expresos para ampliar la sensación del espacio en “perspectiva”), generen amplitud y dinamismo tanto en los ambientes interiores como en el conjunto volumétrico.

Se ubicaron aberturas en los tímpanos como lenguaje, dejando las bóvedas de cañón continuar los muros de ladrillo visto (pies derechos) cerrados, de modo que las aberturas existentes en estas fueron resueltas con lunetos.

La estructura fue solucionada con ladrillos de carga tanto en los muros como en las cubiertas de bóveda rebajada, de crucería y de cañón. La solución constructiva de las cubiertas consistió en neutralizar los empujes laterales de estas, mediante vigas planas de hormigón armado en los arranques, sujetadas por tensores a la altura de los dintele; de modo que el trabajo de los muros se redujo a portar cargas verticales.

La distribución de bóvedas ha sido cuidadosamente estudiada en sus encuentros, a fin de evitar la creación de vallas donde se empocen las aguas de lluvias, permitiendo su escurrimiento fuera del perímetro de la casa.

Ubicación: Calacoto, calle 16 esq. Av. Costanera

Terreno: 405m2

Area construida: 308m2

Proyecto: 1982

Fotografías: Alfonso Salinas, Carlos D. Mesa G.